- Россия
- Базы отдыха
- Горный Алтай (Республика Алтай)
- село Узнезя
-
База отдыха Айбарка
- Республика Алтай, Чемальский р-н
- 47.6 км до Горно-Алтайска
- 13.7 км до Чемала
- 8.4 км до села Элекмонар
- менее 50 метров до берега
В живописном уголке Горного Алтая, всего в 2 километрах от села Узнезя, вдали от шумных дорог, на берегу реки расположена база отдыха «Айбарка» — отличное место для семейного отдыха.
База находится в просторной долине без заборов, что создаёт ощущение свободы и расслабленности. Гости отмечают это как одно из преимуществ. В окрестностях можно встретить диких мустангов, коз, сусликов, а в реке водится рыба.
Живописные пейзажи радуют глаз, а кристально чистый воздух заряжает энергией природы, наполняя бодростью и здоровьем. База открылась в мае 2021 года, предлагая возможность насладиться первозданной красотой Алтая в комфортных условиях.
Для гостей с личным транспортом предусмотрена бесплатная парковка. В летний сезон на территории базы работает кафе-столовая. В мае и сентябре график её работы необходимо уточнять у администрации.
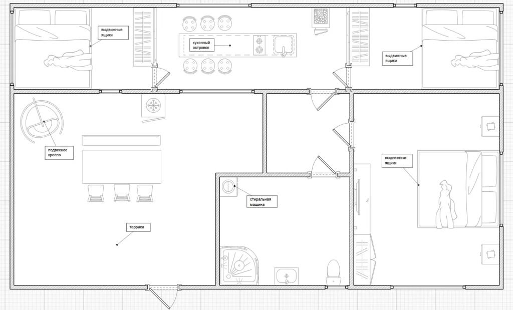
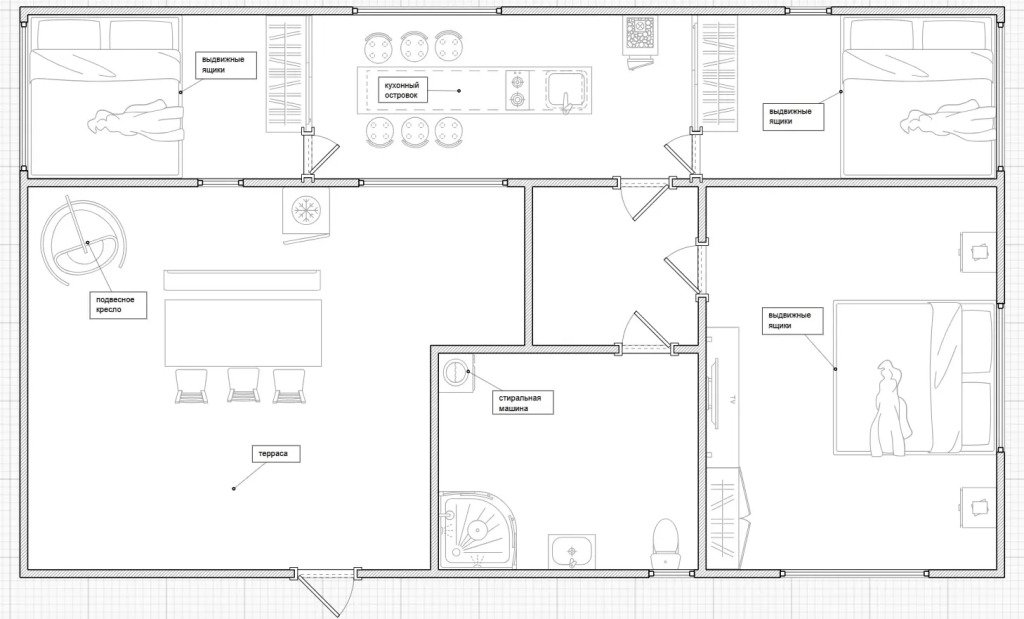
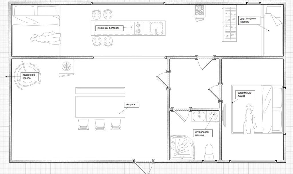
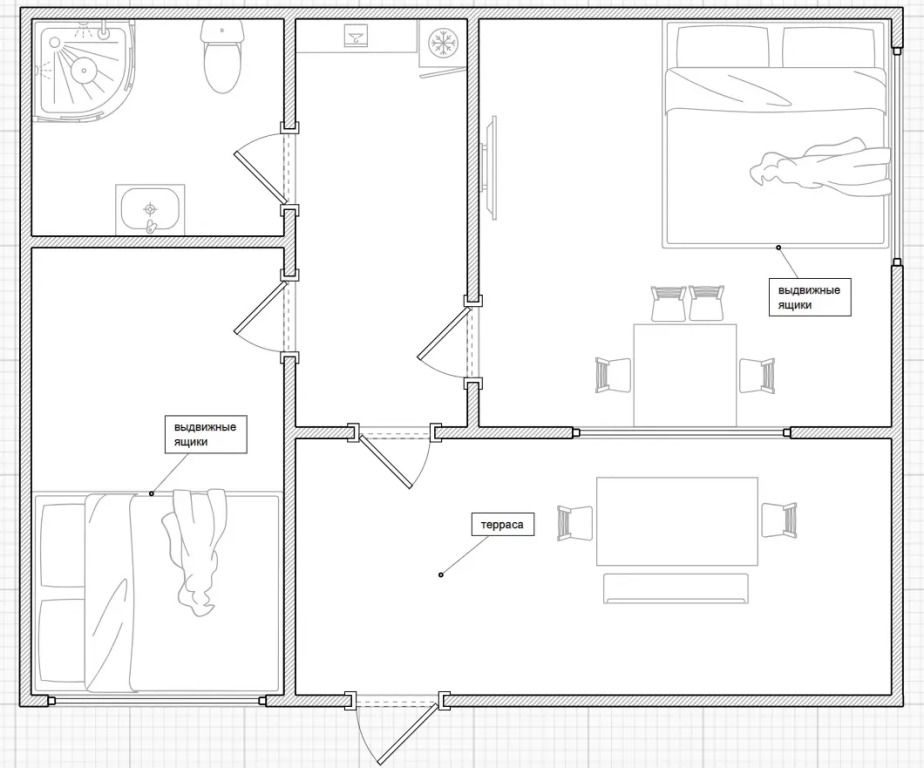
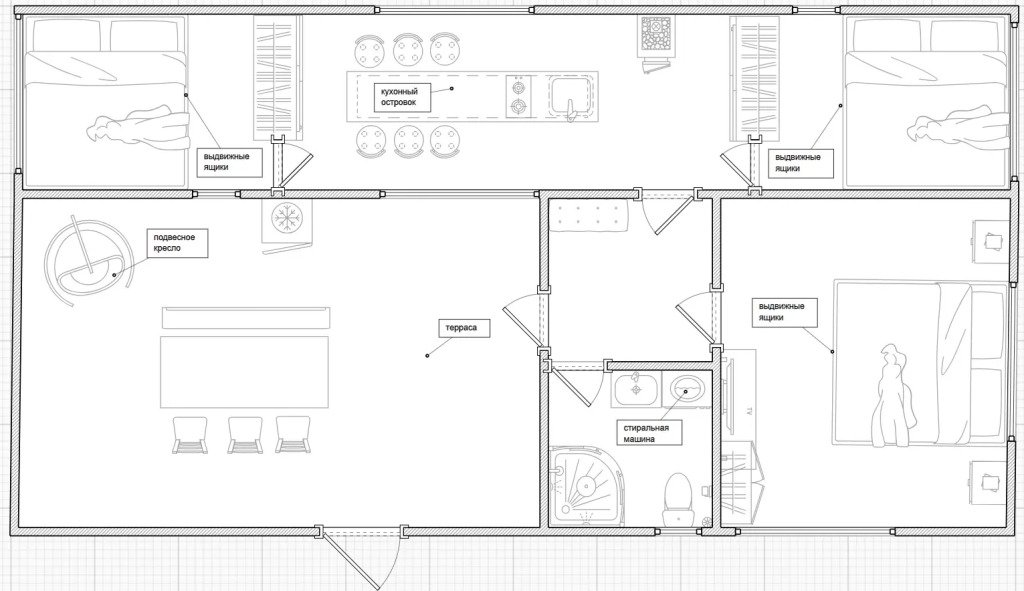
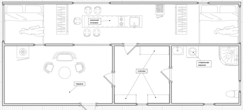
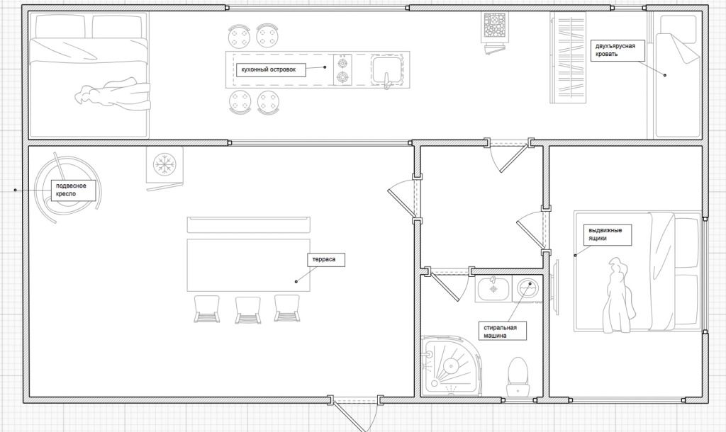
Номерной фонд включает 49 уютных и современных номеров с отдельным входом, крытой террасой и всеми удобствами. В каждом номере установлены ортопедические матрасы и постельное бельё премиум-класса.
Любителям стейков и овощей на гриле предоставляется мангальная зона, оснащённая всем необходимым. Также есть сауна и возможность заказать кальян.
Для отдыхающих доступны разнообразные развлечения, многие из которых бесплатны: бассейн, костровище, батуты, горные велосипеды, волейбольная площадка, баскетбольное кольцо, качели, гамаки, лежаки, песочница для детей, настольные игры, настольный теннис и рыбалка. На террасе кафе у реки гостям бесплатно предлагается ароматный травяной чай.
Важно учитывать, что мобильная связь работает нестабильно. Wi-Fi доступен только на территории столовой. Также следует иметь в виду, что домики не отапливаются.
Номера и цены
Бронирование осуществляется без наценок
Произошла ошибкa при получении данных о вариантах размещения.
Попробуйте сбросить текущие параметры поиска.
-
2 гостя
2 взрослых на основных местахБез питания -
2 гостя
2 взрослых на основных местахБез питания -
4 гостя
2 взрослых на основных местахБез питания -
2 гостя
2 взрослых на основных местахБез питания -
2 гостя
2 взрослых на основных местахБез питания -
2 гостя
2 взрослых на основных местахБез питания -
4 гостя
2 взрослых на основных местахБез питания -
2 гостя
2 взрослых на основных местахБез питания -
4 гостя
2 взрослых на основных местахБез питания -
2 гостя
2 взрослых на основных местахБез питания -
2 гостя
2 взрослых на основных местахБез питания -
2 гостя
2 взрослых на основных местахБез питания -
4 гостя
2 взрослых на основных местахБез питания -
2 гостя
2 взрослых на основных местахБез питания -
4 гостя
2 взрослых на основных местахБез питания -
2 гостя
2 взрослых на основных местахБез питания -
6 гостей
2 взрослых на основных местахБез питания -
2 гостя
2 взрослых на основных местахБез питания
Двухместный номер Deluxe двуспальная кровать
33 м2 · 2-х местный гостиничный номер
В гостиничном номере
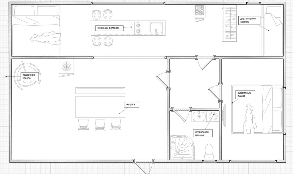
Четырёхместное шале
30 м2 · 2-х местный шале
В шале
Четырёхместное шале
30 м2 · 4-х местный мини-дом
В мини-доме
Двухместный номер Economy двуспальная кровать
2-х местный гостиничный номер
В гостиничном номере
Двухместный номер Deluxe двуспальная кровать
33 м2 · 2-х местный гостиничный номер
В гостиничном номере
Тент
65 м2 · 2-х местный кемпинг
В кемпинге
Четырёхместный номер Standard
4-х местный гостиничный номер
В гостиничном номере
Тент
65 м2 · 2-х местный кемпинг
В кемпинге
Четырёхместный номер Economy
4-х местный гостиничный номер
В гостиничном номере
Апартаменты с 2 комнатами
52 м2 · 2-х местный гостиничный номер
В гостиничном номере
Апартаменты с 2 комнатами
52 м2 · 2-х местный гостиничный номер
В гостиничном номере
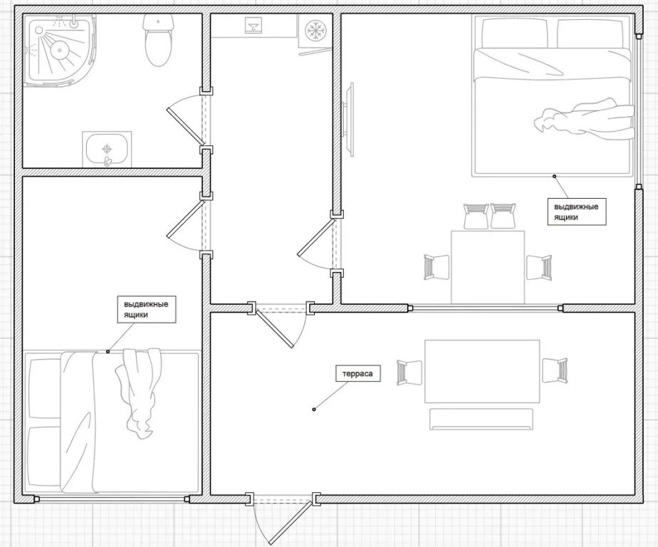
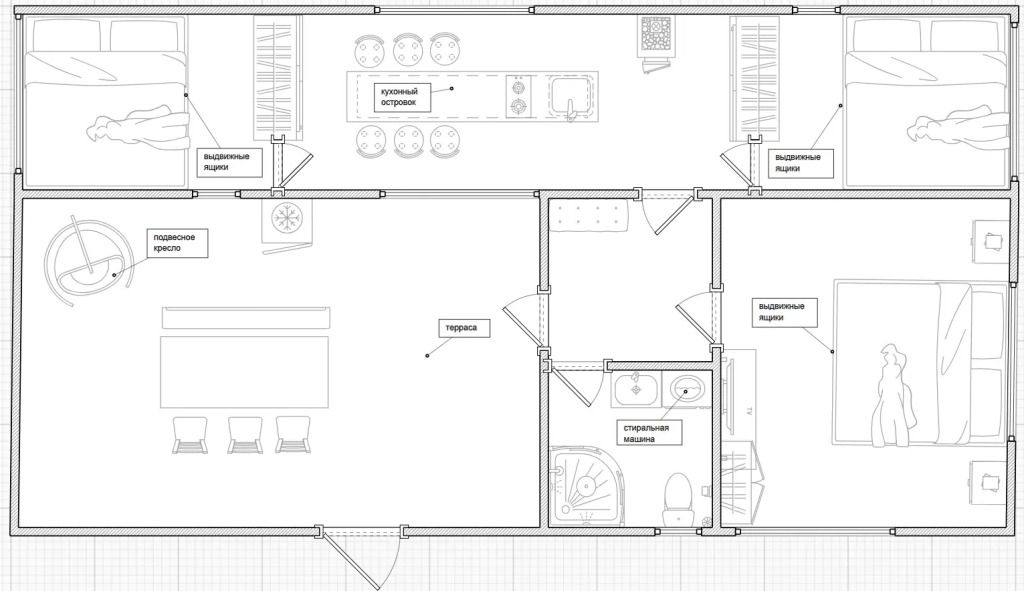
Коттедж с 2 комнатами
80 м2 · 2-х местный дом
В доме
Люкс с 2 комнатами
4-х местный vip-дом
Коттедж с 2 комнатами
80 м2 · 2-х местный дом
В доме
Коттедж с 3 комнатами
80 м2 · 4-х местный дом
В доме
Коттедж с 3 комнатами
80 м2 · 2-х местный дом
В доме
Шестиместный коттедж
6-и местный дом
В доме
Люкс с 2 комнатами
2-х местный vip-дом
В vip-доме
Или нужно забронировать сразу несколько номеров? Вы можете оставить письменную заявку и мы поможем составить бронирование на основе Ваших особых пожеланий.
Заявка на подбор отдыхаВсе услуги
Услуги с описанием и фото
-
Территория, инфраструктура и удобства
Костровая зона
Вы можете провести шикарный, атмосферный вечер под треск костра и шум реки на специальной площадке.
Костровая зона
Описание
Вы можете провести шикарный, атмосферный вечер под треск костра и шум реки на специальной площадке.
Парковка / Автостоянка
Бесплатно (Информация от 10 марта 2025)
Тип парковки: на территорииПарковка / Автостоянка
Описание
Тип парковки: на территорииСтоимость
БесплатноДетский бассейн
Бесплатно (Информация от 10 марта 2025)
Детский бассейн
Описание
Тип бассейна: открытый бассейн, каркасный бассейн, детский бассейнПериод работы: летний сезонСтоимость
Бесплатно -
Питание
Кафе-столовая
Вкусный завтрак, сытный обед или атмосферный ужин в просторном кафе-столовой на территории.
В теплые дни вы можете расположиться на террасе кафе возле реки с великолепным видом на горы.
Для прохладных вечеров есть два теплых зала.
Режим работы с 9:00 до 21:00.
- Завтрак с 09:00.
- Обед с 14:00.
- Ужин с 19:00.
Кафе-столовая
Описание
Вкусный завтрак, сытный обед или атмосферный ужин в просторном кафе-столовой на территории.
В теплые дни вы можете расположиться на террасе кафе возле реки с великолепным видом на горы.
Для прохладных вечеров есть два теплых зала.
Режим работы с 9:00 до 21:00.
- Завтрак с 09:00.
- Обед с 14:00.
- Ужин с 19:00.
Мангальная зона
Платно (Информация от 10 марта 2025)
Приготовьте сочное мясо или овощи в специально оборудованном месте на берегу реки. Также для вас возле мангала есть столы и лавочки
Мангальная зона
Описание
Приготовьте сочное мясо или овощи в специально оборудованном месте на берегу реки. Также для вас возле мангала есть столы и лавочки
Услуга оплачивается отдельноИнформация от 10 марта 2025
-
Развлечения и спорт
Аренда велосипедов
Бесплатно (Информация от 10 марта 2025)
Аренда велосипедов
Стоимость
БесплатноБатут
Бесплатно (Информация от 10 марта 2025)
Батут
Стоимость
БесплатноНастольные игры
Бесплатно (Информация от 29 июля 2025)
Вы можете всей семьей поиграть в настольные игры. Особенно актуально дождливым летним вечером. Выдаются под залог.
Настольные игры
Описание
Вы можете всей семьей поиграть в настольные игры. Особенно актуально дождливым летним вечером. Выдаются под залог.
Стоимость
БесплатноГамак
Бесплатно (Информация от 29 июля 2025)
На территории базы расположены места отдыха, где вы можете провести время в тишине и спокойствии.
Гамак
Описание
На территории базы расположены места отдыха, где вы можете провести время в тишине и спокойствии.
Стоимость
Бесплатно -
Баня или сауна
Сауна
Платно (Информация от 10 марта 2025)
Вы можете посетить сухую, горячую сауну и расслабиться в комнате отдыха. Сауна без веников. Вместимость 8 человек.
В стоимость входит комплект полотенец для каждого гостя. Требуется предварительное бронирование.
Сауна
Описание
Инфраструктура: полотенцаМинимальное время аренды: 2 часаВы можете посетить сухую, горячую сауну и расслабиться в комнате отдыха. Сауна без веников. Вместимость 8 человек.
В стоимость входит комплект полотенец для каждого гостя. Требуется предварительное бронирование.
Услуга оплачивается отдельноИнформация от 10 марта 2025
-
Рыбалка
Рыбалка
Бесплатно (Информация от 29 июля 2025)
Рыбалка на реке Узнезя — удовольствие для знатоков и начинающих рыболовов. Небольшая река и вкуснейший хариус (удочки не выдаются).
Рыбалка
Описание
Рыбалка на реке Узнезя — удовольствие для знатоков и начинающих рыболовов. Небольшая река и вкуснейший хариус (удочки не выдаются).
Стоимость
Бесплатно -
Другое
Размещение с домашними животными
Платно (Информация от 10 марта 2025)
Читать полностьюПроживание с питомцем на базе разрешается только после согласования с администрацией.
К размещению допускаются питомцы:
- весом до 20 кг;
- старше 1 года;
- приученные к туалету;
- с ветеринарным паспортом и всеми прививками по возрасту;
- неагрессивные и неконфликтные.
Стоимость:
- проживание питомца — 3000 ₽ (фиксированная стоимость);
- залог — 5000 ₽ (наличными, возвращается после проверки номера при отсутствии повреждений).
Обязательства владельца питомца:
- самостоятельная уборка территории за питомцем;
- наличие всего необходимого для комфортного пребывания как питомца, так и других гостей;
- выгул питомца по территории базы разрешён только в ошейнике (шлейке) и на поводке.
Запрещено:
- оставлять питомца одного в номере без присмотра;
- мыть питомца в душевой кабине номера, использовать постельное бельё и полотенца базы отдыха;
- находиться с питомцем в закрытых помещениях общего пользования (столовая, сауна);
- отпускать питомца на свободный выгул в пределах территории базы.
Размещение с домашними животными
Описание
Проживание с питомцем на базе разрешается только после согласования с администрацией.
К размещению допускаются питомцы:
- весом до 20 кг;
- старше 1 года;
- приученные к туалету;
- с ветеринарным паспортом и всеми прививками по возрасту;
- неагрессивные и неконфликтные.
Стоимость:
- проживание питомца — 3000 ₽ (фиксированная стоимость);
- залог — 5000 ₽ (наличными, возвращается после проверки номера при отсутствии повреждений).
Обязательства владельца питомца:
- самостоятельная уборка территории за питомцем;
- наличие всего необходимого для комфортного пребывания как питомца, так и других гостей;
- выгул питомца по территории базы разрешён только в ошейнике (шлейке) и на поводке.
Запрещено:
- оставлять питомца одного в номере без присмотра;
- мыть питомца в душевой кабине номера, использовать постельное бельё и полотенца базы отдыха;
- находиться с питомцем в закрытых помещениях общего пользования (столовая, сауна);
- отпускать питомца на свободный выгул в пределах территории базы.
Услуга оплачивается отдельноИнформация от 10 марта 2025
Отзывы
-
Дата пребывания:
май 2024 г.Тип отдыха:
Путешествие с семьейМай24Первый раз отдыхали в Айбарке на майские праздники и остались очень довольны! Приехали под утро, разрешили заселиться пораньше. База находится в окружении холмов, удаленно от трассы и шумных мест, умиротворяюще журчит горная река Узнезя. Прямо на её берегу завтраки, мангальная зона.
Для детей несколько батутов, качели, гамаки, классные велосипеды, мини-библиотека, настольные игры.
Вкусная столовая до 22вечера, нон-стоп.
Домики разных типов и юрты. Свежая мебель, добротная сантехника.
Огромное спасибо управляющими Ларисе и Александру! Будем вас рекомендовать друзьям!
Как добраться
База отдыха находится, в Чемальском районе, село Узнезя.
Если ехать со стороны Горно-Алтайска в сторону Чемала, то перед мостом в с.Узнезя, гостям необходимо повернуть налево в сторону деревни Бешпельтир.
После поворота нужно проехать ровно 2 километра и после дорожного знака "2" справа будет мостик через речку.
Условия проживания
- Расчётные часы
- Регистрация заезда — 14:00
- Регистрация выезда — 11:00